順義獨棟別墅——北京合院位于順義區燕京街與通順路交匯口東800米。項目占地面積133209㎡,建筑面積199814㎡,容積率1.5,共有993戶住戶,建筑類別為合院與高層。

項目周邊各類配置都較為成熟,交通方面,項目鄰近15號線順義站。
醫療方面:有北京順義區婦幼保健院、北京順義區醫院、北京文昌中醫醫院等。
教育方面:項目緊鄰北京市順義區第一中學、順義區石園小學,順義五中、北京市順義區第九中學等。
商業方面:附近有鑫海韻通大賣場,項目三公里左右有新世界百貨、隆華購物中心等。
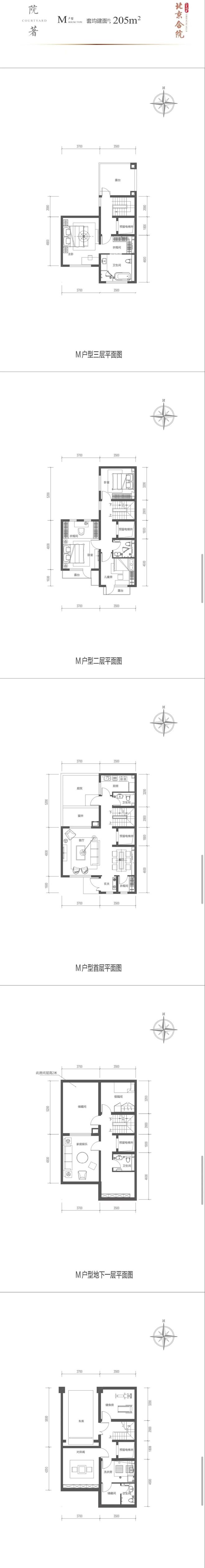
小夏了解到,位于順義區的「北京城建·北京合院」項目近期推出了少量的特價房源,其中224㎡北向戶型一套,優惠后價格為864萬。
另有幾套特惠房源為205㎡南向戶型,價格在920-940萬之間。
詳情可咨詢順義獨棟別墅置業顧問,電話:15210255069,夏天。
或加微信15210255069,備注“順義獨棟別墅”,了解更多信息。
224㎡北向戶型整體為上三層下兩層。首層主要為活動區,另配置了單獨衣帽間。二層與三層為休息區域。三層主臥為套間,配置步入式衣帽間,衛生間空間較大,且有3.5m露天陽臺,居戶的生活體驗感佳。
地下一層與二層分別為功能間和車庫,具體房屋的功能可根據居戶的需求改造為各類功能間,如會客間,娛樂室,酒窖等等,整體空間利用較為靈活。

南向205㎡戶型首層衣帽間與客廳都為南向,南北通透,整體采光更佳。二層與三層為休息區。三層套間設有步入式衣帽間,衛生間也朝南,通風較佳。
地下兩層與北向戶型類似,都可根據需求改造為各類功能間,較為靈活。







